Project Name: Helsinki Architecture and Design Museum
Location: Helsinki, Finland
Size: 10,457 m2
Design time: 2024
Status: Competition
The new museum building is an extension of Tähtitorninvuori Hill, and the roof slopes down in a natural manner at the end of the coastal building sequence. The reflection of the waves on the seaside turns “Ylämaat” and sea connected.
We hope to bring more natural elements to this area through new architecture and environmental design, not only greenery on the square, but also introducing greenery inside of the building and roof terrace, so the people could enjoy the greenery all year round. The new museum building to be designed as wooden structure building, and cladding with dark wooden panels.
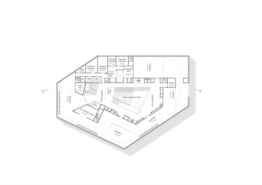
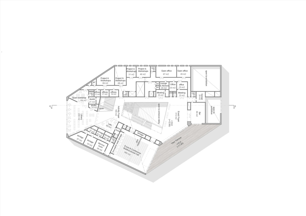
The total net floor area of the building is 8,298 m2, and gross floor area is 10,457m2. The building is divided into three levels, where the first and the third floor are public activity areas, and exhibitions are mainly on the second floor. Therefore it is possible that the 1st and 3rd floor can be
opened to the public outside the museum’s business hours.
The full-height windows in the exhibition (2nd floor) and library (3rd floor), the terrace with panoramic view on the 3rd floor, and the roof terrace give the new building a unique character.
Compared with the long historical Romantic style of the entire area, the new building looks understated outside but active inside. The central lobby space with its entrances opens to two main directions of approach, where people could walk freely and meet. It is also a “winter garden” with
skylight and greenery. During the cold season, people could have a cup of coffee on the third floor while reading a book in library or talk with friends in front of the large floor-to-ceiling windows in event hall meanwhile enjoying the sea view.









