Location: Kivisilta, Kerava
House type: private houses (omakoti)
Size: 200 m2
Design time: 2022
Status: building permission applying
The house shape is inspired by two parties, by a composition of yin and yang. Two building volumes are placed on the property, the “front house” which is facing the street and new urban development and the “garden house”, surrounded by the garden in the back, facing the park. The roof landscape is a playful composition of two traditionally shaped gable roofs.
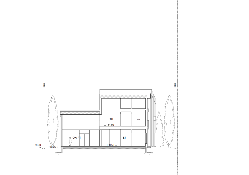
In plan the building is divided in plan in three building blocks by two vertical green “canyon” cuts, which are connecting the front and back sides of the house. These cuts are drawing and defining the functions of the house, as well as creating connections from the interior to the garden, on many levels. They are the main access corridors into and through the house, they transport daylight deep into the the center of the house, and they also provide a spiritual and conceptual link between indoor and outdoor. Balconies are placed into the two cuts on the second floor, which are filled with greenery, visible from inside, especially from the double height living room area. The building roofs open up to the sky above the cuts, covered only by glazing.
Generally the feeling and spatial concept is that of a house maximizing its link to the natural surrounding. Green and generous daylighting is entering the interiors from all sides.
The house is built from massive CLT elements as a main ecological driver. The massive timber is a carbon sink, storing CO2, creating a building with a minimized carbon footprint.































